HouseMekar

Concept 2D Plan by HouseMekar

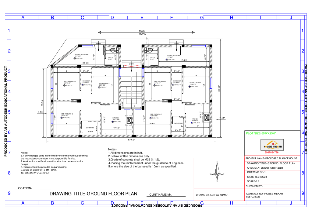
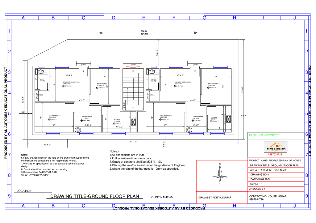
A Concept 2D Plan is a two-dimensional representation of a building’s layout and structure, providing a flat, overhead view that outlines the arrangement of spaces, rooms, walls, doors, windows, and other architectural elements. This design is an essential step in the architectural planning process, offering a visual blueprint that guides architects, designers, and builders through the development of a functional and aesthetically pleasing structure.

Purpose and Importance of a Concept 2D Building Design

The concept 2D building design is a crucial tool for several reasons:

1. Spatial Organization:
– A 2D building design helps in organising the space within a building efficiently. It allows architects and designers to strategically plan the layout, ensuring optimal use of space, proper flow between different areas, and accessibility. This is particularly important in residential, commercial, and industrial buildings where space needs to be used effectively to meet the needs of occupants.

2. Design Visualisation:
– By providing a clear, simplified representation of the building’s layout, a 2D design helps stakeholders visualise the overall structure and layout. This visualisation is key to understanding how different spaces will function together and how the building will look once constructed. It allows for early detection of potential design issues and makes it easier to make adjustments.

3. Communication Tool:
– The 2D building design serves as a vital communication tool between architects, clients, builders, and other stakeholders. It provides a common reference point that facilitates discussions and ensures that everyone involved has a clear understanding of the design intent. This helps in aligning expectations and reducing misunderstandings during the construction process.

4. Foundation for Detailed Drawings:
– A concept 2D design serves as the foundation for more detailed architectural drawings, such as floor plans, elevations, sections, and 3D models. It provides the basic layout and structural information needed to create more comprehensive and precise construction documents. This step-by-step approach helps in refining the design and ensuring accuracy in the final construction.

5. Cost Estimation and Budgeting:
– The 2D building design is also instrumental in cost estimation and budgeting. By outlining the building’s layout and structure, architects and builders can estimate the quantities of materials required, the labor involved, and the overall cost of the project. This aids in financial planning and helps ensure that the project stays within budget.

6. Regulatory Compliance:
– The 2D design is used to ensure that the building complies with local building codes, zoning laws, and other regulations. It provides necessary details, such as emergency exits, accessibility features, and structural elements, which are essential for obtaining building permits and approvals.

Key Components of a Concept 2D Building Design

A concept 2D building design typically includes several key components:

1. Walls and Partitions:
– The design shows the placement of interior and exterior walls, partitions, and structural supports. This helps in understanding the spatial division within the building and the overall structure.

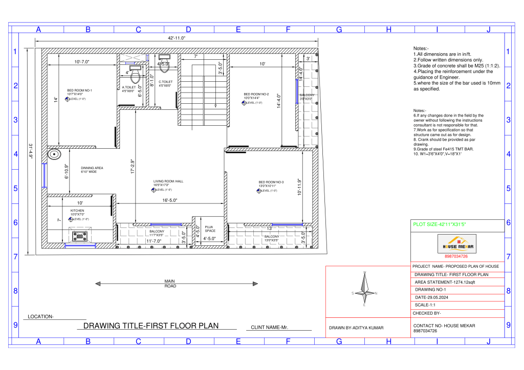
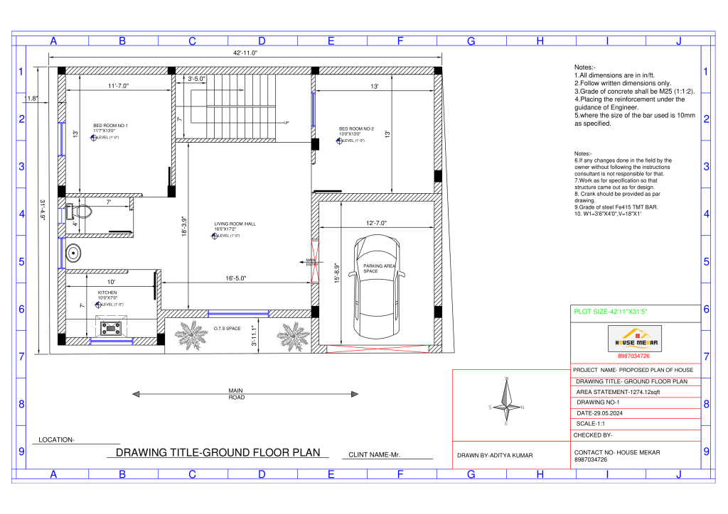
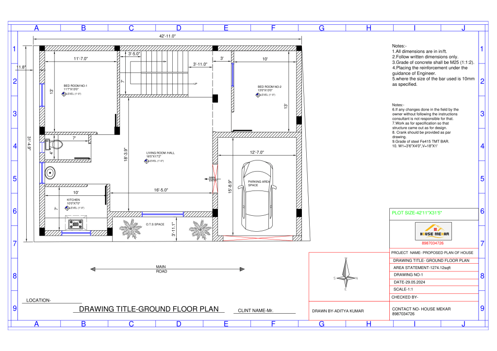
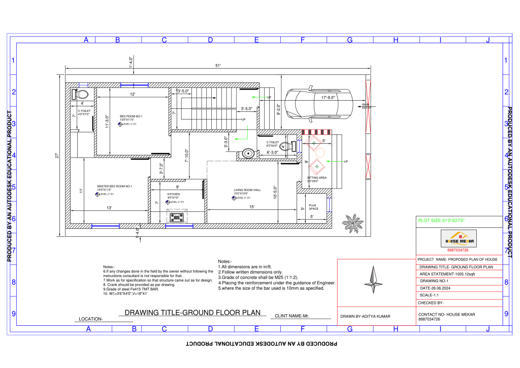
2. Rooms and Functional Areas:
– The plan outlines the location and size of rooms and functional areas such as kitchens, bathrooms, living rooms, offices, conference rooms, etc. Each space is labeled and dimensioned, providing a clear overview of the building’s interior layout.

3. Doors and Windows:
– The placement and type of doors and windows are indicated in the design, showing how light, air, and movement will flow through the building. This is crucial for both aesthetic and functional considerations, such as natural lighting, ventilation, and accessibility.

4. Staircases and Elevators:
– For multi-story buildings, the design includes the location of staircases and elevators, providing details on how different floors are connected. This is essential for planning vertical circulation within the building.

5. Furniture and Fixtures:
– Some 2D building designs also include suggested placements for furniture, fixtures, and equipment, especially in concept designs for residential and commercial spaces. This helps clients visualize how spaces might be used and arranged.

6. Utilities and Services:
– The plan may also indicate the location of utilities and services such as electrical outlets, plumbing lines, HVAC systems, and other infrastructural elements. This information is essential for the planning and installation of these systems during construction.

7. Annotations and Dimensions:
– The design includes annotations and dimensions, providing specific measurements and notes that clarify the layout and construction details. This information is crucial for builders and contractors during the construction phase.

Benefits of a Concept 2D Building Design

Efficiency: Helps in efficiently planning the building layout to make the best use of space.
Cost-Effective: Allows for early identification of potential design issues, reducing the need for costly changes during construction.
Collaboration: Enhances collaboration among team members and stakeholders, ensuring everyone is on the same page.
Flexibility: Provides a flexible tool that can be easily modified to accommodate design changes or client feedback.

Best Architect Company of Bihar & Jharkhand

Get 2D Plan Design at just Rs.4999. Don’t miss out!

We Can’t Wait to Make Your Ideas a Reality

Scroll to Top